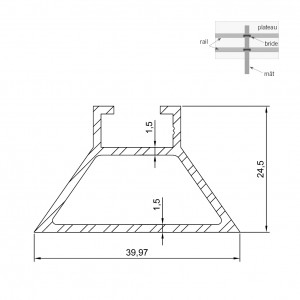
BRIDE | FIXATION DE PANNEAUX PLIÉS DOUBLE PLI (PPC) SUR MAT
• Fixation de panneaux pliés double pli (PPC) sur mât • Visserie fournie
Tous nos produits
Filtrer par
Il y a 9 produits.
• Fixation de panneaux pliés double pli (PPC) sur mât • Visserie fournie
• Longueurs disponibles : 2000 mm - 3000 mm - 4000 mm - 6000 mm • Fourni avec bouchon
• Longueur de 1500 ou 3000 mm • Largeur 40 mm/ hauteur 10 mm • Pour écrous de 13 mm • Possibilité de recoupe sur demande • Utilisable avec nos brides • Double-face 3110W-38/33 recommandé
• Longueur de 1500 ou 3000 mm • Largeur 40 mm/ hauteur 25 mm • Pour écrous de 13 mm • Possibilité de recoupe sur demande • Utilisable avec nos brides • Permet de rigidifier les panneaux PPC • Double-face 3110W-38/33 recommandé
• Plateau seul en aluminium 18/10 - 1500 x 1000 mm - format paysage • Laqué blanc
• Platines rectangulaires inox • Aspect noir ou chromé • Pour visuels de 60 cm de large • Déport du mur 149 mm
Cette paire de platines murales en acier inoxydable et de Ø 150 mm avec un aspect chromé permet la réalisation de kakémonos en drapeau (perpendiculaire au mur). Avec ce système, la tension de la bâche est réglable et la fixation murale se fait avec un trou de Ø 10 mm (avec 4 trous par platine, espacés de 85 mm). Le tube supportant la bâche est de Ø32 mm et le déport du mur de 160 mm. Avec ces platines, la largeur du visuel doit être de 800 mm pour une largeur totale de 1000 mm. Les médias recommandés pour le visuel sont les bâches, les toiles, les textiles, ... Cette structure est livrée sans visuel.
• Platines en acier inoxydable, aspect chromé • Pour la réalisation de kakémonos muraux (parallèle au mur) • Tension de la bâche réglable • Fixation murale, trou Ø 10 mm • Tube supportant la bâche Ø 32 mm • Déport du mur 60 mm
• Réalisation de cadres extérieurs pour bâches tendues • Tubes en aluminium • Pièces de connexions coulées en fonte d’aluminium • Assemblage des tubes et des pièces sans soudure • Fixation par serrage vis BTR 8 mm • Déport du mur 70 mm • Entraxede fixation au mur de la bride A34 82,5 mm, trou Ø 10 mm • Médias recommandés pour le visuel: Bâches
Affiner votre recherche